Villa singola in vendita

Roma, Via campolattaro - Paglian Casale
€ 379.000
Prezzo aggiornato
200 Mq 200 Mq
2 bagni 2 bagni

Villa singola in vendita

Roma, Via campolattaro - Paglian Casale

Descrizione annuncio

Nel cuore della tranquilla località di Palazzo Morgana , nel comune di Roma , si trova questa soluzione, costruita nel 2010.

Questa proprietà offre un ambiente accogliente e funzionale, ideale per chi cerca una residenza spaziosa e ben organizzata.

La villa si sviluppa su tre livelli .

Caratteristiche principali:

Piano Terra: Ampio portico con accesso diretto al giardino, soggiorno luminoso, cucina separata, due camere e due bagni.

Piano Primo: Ulteriore ambiente adibito a lavatoio, tre stanze da personalizzare in base alle proprie esigenze

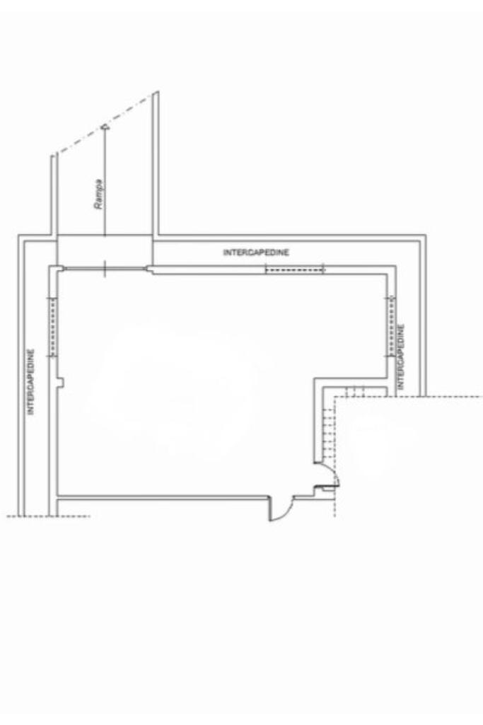
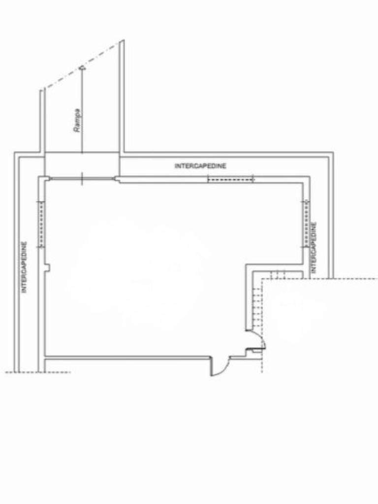
Piano Semi interrato Ampia zona da sfruttare in base alle proprie esigenze e composta da unico ambiente e intercapedine

Esterni: Spazioso giardino privato e possibilità di personalizzazione degli spazi in base alle necessità di ogni nucleo familiare.

L’immobile è la scelta perfetta per chi cerca un’abitazione versatile, pronta per essere abitata, ma che offre anche la possibilità di essere adattata a seconda delle esigenze future. La proprietà si sviluppa su un lotto di 1500 mq, con ampi spazi esterni e la possibilità di personalizzare ulteriormente l'ambiente.

Ideale per famiglie numerose, genitori e figli, o per chi desidera una soluzione con una parte da adibire a hobby o a studio privato.

Mostra tutto

Nelle vicinanze

Trasporto pubblico Trasporto pubblico
Pavona
Pavona
1,6 Km
stazione di Pomezia-Santa Palomba
stazione di Pomezia-Santa Palomba
2,1 Km
Ardeatina/Solfarata
Ardeatina/Solfarata
1,6 Km
Ardeatina/Tor del Vescovo
Ardeatina/Tor del Vescovo
1,7 Km
Ricariche auto elettriche Ricariche auto elettriche
Eneldrvie Stazione Santa Palomba
2,1 Km
Santa Palomba Fiorucci | EnelX
2,4 Km
Scuole Scuole
Istituto Comprensivo "Fabrizio De André"
1,6 Km
Scuole
2,0 Km
Scuola Asilo Pio XII
2,3 Km
Farmacia Farmacia
Farmacia Camerucci
1,7 Km
Farmacia
2,2 Km
Supermercati Supermercati
Sigma
410 m
Conad
2,2 Km
Todis
2,2 Km
Supermercati
2,5 Km
Panorama
2,6 Km
Negozi Negozi
Pane Pizza Dolci Casarecci
2,3 Km
Negozi
2,7 Km
Ristoranti Ristoranti
Fuori I Secondi
2,2 Km
Trattoria della Sosta
2,4 Km
Mostra tutto

Caratteristiche

Rif.:
61191122
Piano:
Su più livelli di 3
Totale piani:
3
Box:
1
Posti auto:
3
Balconi:
2
Mostra tutto
Prezzo Prezzo
€ 379.000
Rata mutuo Rata mutuo
€ 1.808 / mese
Proponi il tuo prezzoProponi il tuo prezzo
Immobile valutato con T·Valuta

Classe Energetica

G
G
G
G
G
G
G
G
G
EP globale non rinnovabile:
180.00 kW h/m² anno
Anno di costruzione:
2010
Riscaldamento:
Autonomo
Tipo impianto:
A radiatori
Tipo alimentazione:
Metano

Prezzo ridotto di €1 (6%%)

Ti interessa visionare l'immobile?

Fissa un appuntamento  Fissa un appuntamento

Richiedi informazioni

Clicca su Leggi per aprire l'informativa
* Questi campi sono obbligatori

Calcola il tuo mutuo

Semplice e senza impegno
Anticipo

( % )
Mutuo

( % )

pochi semplici passi

inserisci i tuoi dati
Questionario completato
Grazie per aver richiesto un appuntamento senza impegno con un nostro Consulente del Credito e Assicurativo.

Hai inserito correttamente tutti i dati necessari e a breve riceverai una e-mail con un link da convalidare per inviare i tuoi dati.
Affiliato
Pavona Castel Gandolfo Srl
Via Del Mare, 86/a 00132 Castel Gandolfo (RM)

Il nostro staff


  • Luca Pelfini
    Affiliato

  • Flavia Biondo
    Affiliata

  • Beatrice Dinella
    Collaboratrice

  • Virginia Pelfini
    Responsabile

  • Simona Pozzi
    Collaboratrice
Via Del Mare, 86/a 00132 Castel Gandolfo (RM)
Zona: Castelli Romani-Castel Gandolfo-Pavona
Mostra su mappa
Orari: Dal lunedì al sabato dalle 9:00 alle 13:00 e dalle 15.00 alle 19.00
Affiliato
Pavona Castel Gandolfo Srl
Via Del Mare, 86/a 00132 Castel Gandolfo (RM)

2026 Tecnocasa Franchising S.p.A. - P. IVA 08365160152 - Via Monte Bianco 60/A 20089 Rozzano (MI). Ogni agenzia ha un proprio titolare ed è autonoma. Privacy policy | Policy utilizzo | Cookie policy