Villa singola in vendita

Roma, Via Campolattaro - Paglian Casale
€ 279.000
200 Mq 200 Mq
2 bagni 2 bagni

Villa singola in vendita

Roma, Via Campolattaro - Paglian Casale

Descrizione annuncio

Scopri la tua nuova casa!

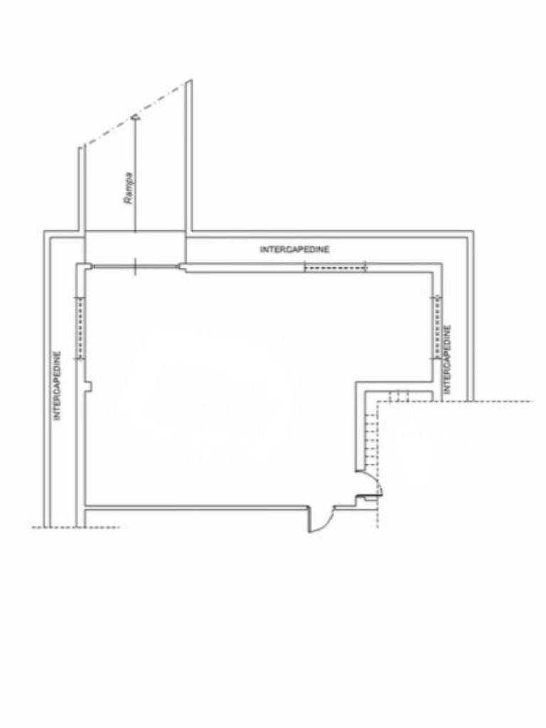
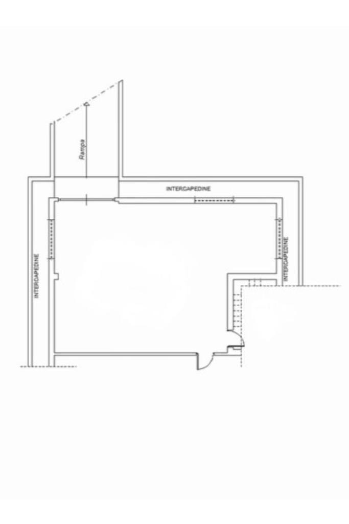
Questa villa singola, sviluppata su tre livelli, offre un'opportunità unica per personalizzare ogni angolo della tua futura abitazione. Immersa in un ampio giardino privato, la villa è perfetta per chi cerca una casa da rifinire e adattare secondo i propri gusti, sia all'interno che all'esterno.

- Al piano terra trovate un ampio portico che permette l'accesso diretto al giardino, un luminoso soggiorno, una cucina separata, due camere da letto e due bagni, offrendo spazi comodi e funzionali per tutta la famiglia.

- Il piano primo comprende un ulteriore ambiente adibito a lavatoio e tre stanze da personalizzare, ideali per creare lo spazio che meglio risponde alle tue esigenze! come camere, studio o palestra.

- Nel piano semi-interrato si trova un'ampia zona da sfruttare a proprio piacimento, con un unico grande ambiente e intercapedine, ideale per creare una zona hobby, una taverna o una cantina.

- L'esterno della villa è un grande giardino privato che offre tante possibilità di personalizzazione: un angolo di paradiso dove rilassarti e creare il tuo spazio all'aperto ideale.

Questa villa ti aspetta per essere trasformata nella casa dei tuoi sogni. Contattaci per maggiori informazioni e per fissare una visita. Non lasciarti sfuggire questa occasione unica! Ecco come funziona: ci vediamo in ufficio (caffè offerto, non preoccupatevi!) e facciamo una chiacchierata gratuita per capire se questa è la casa che fa per voi.
Niente giri a vuoto, niente perdite di tempo: dritti al punto! Se dopo il nostro incontro questa vi sembra la casa dei vostri sogni, vi accompagniamo a fare il sopralluogo.
Se invece non è esattamente quello che cercate abbiamo altre chicche pronte per voi nel nostro portfolio. Non vi lasciamo a mani vuote!
Consulenza mutui?
Siete in crisi perché non sapete dove iniziare? Tranquilli, ci pensiamo noi: vi offriamo una consulenza gratuita e facciamo tutto noi (beh, quasi tutto voi dovete solo venire!). Così, prima di visitare l'immobile, sappiamo già tutto
Si parte sempre dal nostro ufficio, dove vi spieghiamo tutto: compilare moduli, privacy, antireciclaggio e tutti quei paroloni che vi fanno venire mal di testa. Noi lo facciamo facile e veloce, perché vogliamo solo una cosa: che troviate la vostra casa nel minor tempo possibile
Non preoccupatevi, non ci fermiamo qui! Se questa non fa al caso vostro, ci mettiamo il casco da esploratori e cerchiamo la casa perfetta per voi, porta a porta, campanello a campanello. Ci fermiamo solo quando la troviamo! Pronti a fare il grande passo?
Allora, che aspettate? Se siete decisi, non ci resta che sentirci!

Mostra tutto

Nelle vicinanze

Trasporto pubblico Trasporto pubblico
Pavona
Pavona
1,6 Km
stazione di Pomezia-Santa Palomba
stazione di Pomezia-Santa Palomba
2,1 Km
Ardeatina/Solfarata
Ardeatina/Solfarata
1,5 Km
Ardeatina/Tor del Vescovo
Ardeatina/Tor del Vescovo
1,6 Km
Ricariche auto elettriche Ricariche auto elettriche
Eneldrvie Stazione Santa Palomba
2,1 Km
Santa Palomba Fiorucci | EnelX
2,3 Km
Scuole Scuole
Istituto Comprensivo "Fabrizio De André"
1,6 Km
Scuole
2,1 Km
Scuola Asilo Pio XII
2,3 Km
Farmacia Farmacia
Farmacia Camerucci
1,7 Km
Farmacia
2,2 Km
Supermercati Supermercati
Sigma
390 m
Conad
2,2 Km
Todis
2,2 Km
Supermercati
2,5 Km
Panorama
2,6 Km
Negozi Negozi
Pane Pizza Dolci Casarecci
2,3 Km
Negozi
2,7 Km
Ristoranti Ristoranti
Fuori I Secondi
2,2 Km
Trattoria della Sosta
2,4 Km
Mostra tutto

Caratteristiche

Rif.:
61191091
Piano:
Su più livelli di 3
Totale piani:
3
Box:
1
Posti auto:
4
Balconi:
1
Mostra tutto
Prezzo Prezzo
€ 279.000
Rata mutuo Rata mutuo
€ 1.331 / mese
Spese annue Spese annue
€ 0
Proponi il tuo prezzoProponi il tuo prezzo

Classe Energetica

G
G
G
G
G
G
G
G
G
EP globale non rinnovabile:
180.00 kW h/m² anno
Anno di costruzione:
2010
Riscaldamento:
Autonomo
Tipo impianto:
A radiatori
Tipo alimentazione:
Metano

Ti interessa visionare l'immobile?

Fissa un appuntamento  Fissa un appuntamento

Richiedi informazioni

Clicca su Leggi per aprire l'informativa
* Questi campi sono obbligatori

Calcola il tuo mutuo

Semplice e senza impegno
Anticipo

( % )
Mutuo

( % )

pochi semplici passi

inserisci i tuoi dati
Questionario completato
Grazie per aver richiesto un appuntamento senza impegno con un nostro Consulente del Credito e Assicurativo.

Hai inserito correttamente tutti i dati necessari e a breve riceverai una e-mail con un link da convalidare per inviare i tuoi dati.
Affiliato
Pavona Castel Gandolfo Srl
Via Del Mare, 86/a 00132 Castel Gandolfo (RM)

Il nostro staff


  • Luca Pelfini
    Affiliato

  • Flavia Biondo
    Affiliata

  • Beatrice Dinella
    Collaboratrice

  • Virginia Pelfini
    Responsabile

  • Simona Pozzi
    Collaboratrice
Via Del Mare, 86/a 00132 Castel Gandolfo (RM)
Zona: Castelli Romani-Castel Gandolfo-Pavona
Mostra su mappa
Orari: Dal lunedì al sabato dalle 9:00 alle 13:00 e dalle 15.00 alle 19.00
Affiliato
Pavona Castel Gandolfo Srl
Via Del Mare, 86/a 00132 Castel Gandolfo (RM)

2026 Tecnocasa Franchising S.p.A. - P. IVA 08365160152 - Via Monte Bianco 60/A 20089 Rozzano (MI). Ogni agenzia ha un proprio titolare ed è autonoma. Privacy policy | Policy utilizzo | Cookie policy