Bilocale in vendita

Pomezia, Viale delle Arti - Santa Palomba
€ 69.000
2 locali 2 locali
56 Mq 56 Mq
1 bagno 1 bagno

Bilocale in vendita

Pomezia, Viale delle Arti - Santa Palomba

Descrizione annuncio

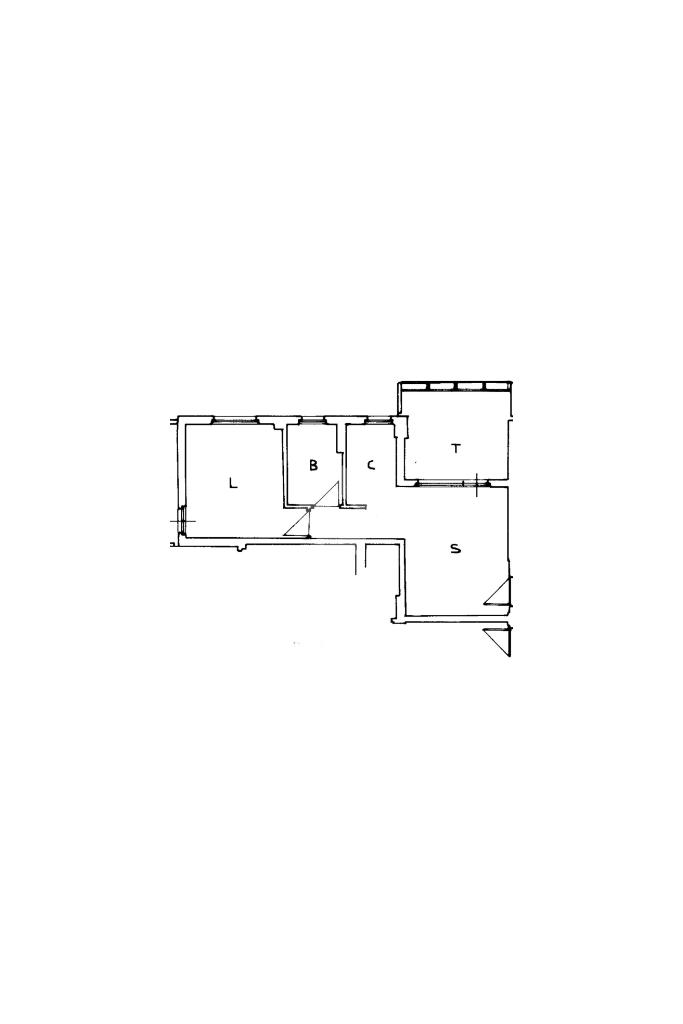
In una zona strategica e servita, a pochi minuti dalla stazione di Santa Palomba, proponiamo in vendita un appartamento al primo piano con ascensore, ideale per chi cerca comodità, collegamenti rapidi e una soluzione pronta da vivere.

L’abitazione si apre su un luminoso soggiorno con accesso diretto al terrazzo abitabile, spazioso e perfetto per pranzi all’aperto o momenti di relax. La zona giorno è completata da un cucinotto separato, pratico e funzionale.

La zona notte comprende una camera matrimoniale ampia e accogliente, servita da un bagno moderno con box doccia.

Inoltre, è disponibile la possibilità di acquistare un box auto di circa 40 mq al prezzo di 25.000 €, ideale come garage doppio o spazio di deposito aggiuntivo.

L’immobile si trova in Viale delle Arti – Roma II, Pomezia, in un contesto residenziale ben servito e vicino alla stazione, perfetto per chi si sposta quotidianamente verso Roma.

Una soluzione completa, moderna e funzionale, pronta per accoglierti.

Ecco come funziona: ci vediamo in ufficio (caffè offerto, non preoccupatevi!) e facciamo una chiacchierata gratuita per capire se questa è la casa che fa per voi.
Niente giri a vuoto, niente perdite di tempo: dritti al punto! Se dopo il nostro incontro questa vi sembra la casa dei vostri sogni, vi accompagniamo a fare il sopralluogo.
Se invece non è esattamente quello che cercate abbiamo altre chicche pronte per voi nel nostro portfolio. Non vi lasciamo a mani vuote!
Consulenza mutui?
Siete in crisi perché non sapete dove iniziare? Tranquilli, ci pensiamo noi: vi offriamo una consulenza gratuita e facciamo tutto noi (beh, quasi tutto voi dovete solo venire!). Così, prima di visitare l'immobile, sappiamo già tutto .
Si parte sempre dal nostro ufficio, dove vi spieghiamo tutto: compilare moduli, privacy, antiriciclaggio e tutti quei paroloni che vi fanno venire mal di testa. Noi lo facciamo facile e veloce, perché vogliamo solo una cosa: che troviate la vostra casa nel minor tempo possibile
Non preoccupatevi, non ci fermiamo qui! Se questa non fa al caso vostro, ci mettiamo il casco da esploratori e cerchiamo la casa perfetta per voi, porta a porta, campanello a campanello. Ci fermiamo solo quando la troviamo! Pronti a fare il grande passo?
Allora, che aspettate? Se siete decisi, non ci resta che sentirci!

Mostra tutto

Nelle vicinanze

Trasporto pubblico Trasporto pubblico
stazione di Pomezia-Santa Palomba
stazione di Pomezia-Santa Palomba
650 m
Trasporto pubblico
130 m
Stazione di Pomezia
Stazione di Pomezia
650 m
Ricariche auto elettriche Ricariche auto elettriche
Santa Palomba Fiorucci | EnelX
320 m
Eneldrvie Stazione Santa Palomba
630 m
Scuole Scuole
Istituto Comprensivo "Fabrizio De André"
190 m
Supermercati Supermercati
Sigma
1,9 Km
Supermercati
2,5 Km
Mostra tutto

Caratteristiche

Rif.:
61118399
Piano:
1 di 5 con ascensore (Piano basso)
Box:
1
Balconi:
1
Terrazzi:
1
Camere da letto:
1
Mostra tutto
Prezzo Prezzo
€ 69.000
Prezzo box Prezzo box
€ 25.000
Rata mutuo Rata mutuo
€ 326 / mese
Proponi il tuo prezzoProponi il tuo prezzo

Classe Energetica

G
G
G
G
G
G
G
G
G
Anno di costruzione:
1998
Riscaldamento:
Autonomo
Tipo impianto:
A radiatori
Tipo alimentazione:
Metano

Ti interessa visionare l'immobile?

Fissa un appuntamento  Fissa un appuntamento

Richiedi informazioni

Clicca su Leggi per aprire l'informativa
* Questi campi sono obbligatori

Calcola il tuo mutuo

Semplice e senza impegno
Anticipo

( % )
Mutuo

( % )

pochi semplici passi

inserisci i tuoi dati
Questionario completato
Grazie per aver richiesto un appuntamento senza impegno con un nostro Consulente del Credito e Assicurativo.

Hai inserito correttamente tutti i dati necessari e a breve riceverai una e-mail con un link da convalidare per inviare i tuoi dati.
Affiliato
Pavona Castel Gandolfo Srl
Via Del Mare, 86/a 00132 Castel Gandolfo (RM)

Il nostro staff


  • Luca Pelfini
    Affiliato

  • Flavia Biondo
    Affiliata

  • Beatrice Dinella
    Collaboratrice

  • Virginia Pelfini
    Responsabile

  • Simona Pozzi
    Collaboratrice
Via Del Mare, 86/a 00132 Castel Gandolfo (RM)
Zona: Castelli Romani-Castel Gandolfo-Pavona
Mostra su mappa
Orari: Dal lunedì al sabato dalle 9:00 alle 13:00 e dalle 15.00 alle 19.00
Affiliato
Pavona Castel Gandolfo Srl
Via Del Mare, 86/a 00132 Castel Gandolfo (RM)

2025 Tecnocasa Franchising S.p.A. - P. IVA 08365160152 - Via Monte Bianco 60/A 20089 Rozzano (MI). Ogni agenzia ha un proprio titolare ed è autonoma. Privacy policy | Policy utilizzo | Cookie policy