Quadrilocale in vendita

Albano Laziale, Via del Mare - Pavona
€ 225.000
4 locali 4 locali
121 Mq 121 Mq

Quadrilocale in vendita

Albano Laziale, Via del Mare - Pavona

Descrizione annuncio

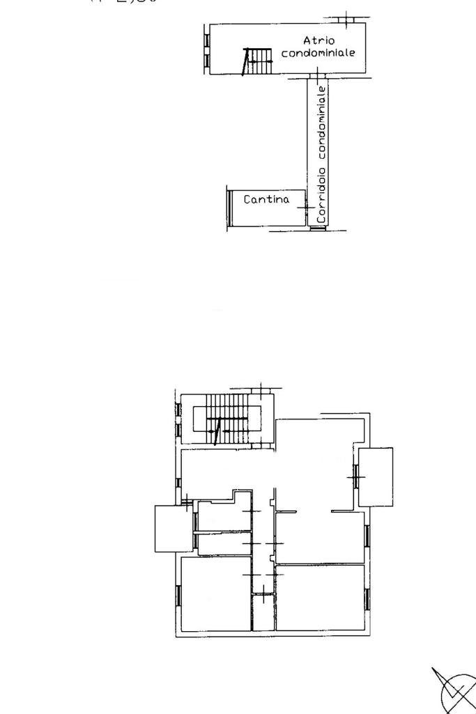
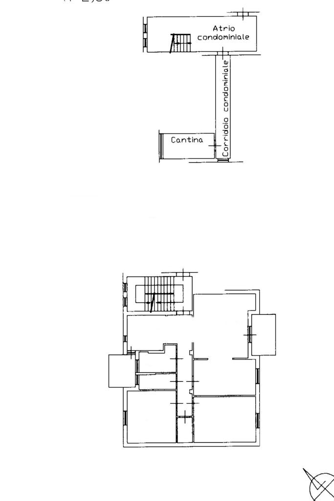
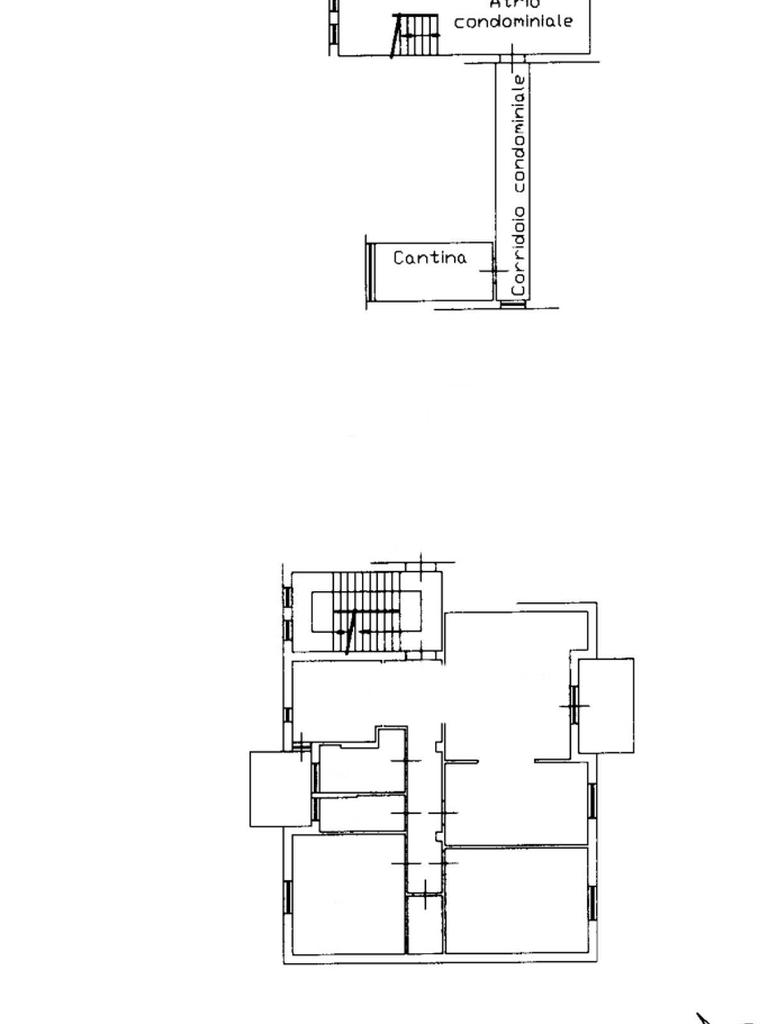
Nel cuore di Pavona, proponiamo in vendita un appartamento completamente ristrutturato nel 2021, al secondo piano di una palazzina di 3 piani. L'immobile è composto da ampio soggiorno con cucina a vista abitabile, entrambi con accesso a due balconi, tre camere matrimoniali, due bagni finestrati con doccia e una dispensa. L'appartamento è dotato di infissi nuovi, zanzariere e serrande automatizzate.

Ottima posizione, a poche passi dalla stazione di Pavona e ben servito da negozi, scuole e trasporti pubblici, in una zona centrale e ben collegata. Vantaggi esclusivi . Ampia metratura e completamente ristrutturato .Posizione centrale a Pavona, ben servita e collegata

Vieni in ufficio (caffè offerto!) e facciamo una chiacchierata gratuita per capire se questa è la casa giusta per te. Niente perdite di tempo, solo soluzioni concrete! Se ti sembra quella dei tuoi sogni, organizziamo subito il sopralluogo. Se non è quella giusta, non ti lasciamo a mani vuote: nel nostro portfolio di case ci sono altre opzioni dubbi sui mutui? Nessun problema! Ti offriamo una consulenza gratuita e facciamo tutto noi (basta solo venire!). Partiamo sempre dal nostro ufficio, dove ti spieghiamo tutto: moduli, privacy, antiriciclaggio in modo semplice e veloce, perché vogliamo che tu trovi la tua casa senza se questa non è perfetta? Ci mettiamo il casco da esploratori e cerchiamo la casa giusta per te, porta a porta, campanello a campanello. Non ci fermiamo fino a trovarla!

Mostra tutto

Nelle vicinanze

Trasporto pubblico Trasporto pubblico
Pavona
Pavona
400 m
Cancelliera
Cancelliera
1,6 Km
Scuole Scuole
Scuole
270 m
Scuola Asilo Pio XII
450 m
Farmacia Farmacia
Farmacia Camerucci
280 m
Farmacia
290 m
Ospedali Ospedali
Pronto Soccorso Ospedale "San Giuseppe"
2,5 Km
Presidio Ospedaliero San Giuseppe Albano
2,5 Km
Ospedale San Giuseppe
2,6 Km
Supermercati Supermercati
Conad
240 m
Todis
290 m
Panorama
1,2 Km
EuroSpin
1,3 Km
Pork's House
1,9 Km
Negozi Negozi
Pane Pizza Dolci Casarecci
350 m
Negozi
1,6 Km
Bar Bar
Bar
2,7 Km
Ristoranti Ristoranti
Fuori I Secondi
340 m
Trattoria della Sosta
690 m
Mostra tutto

Caratteristiche

Rif.:
61190309
Piano:
2 di 3 (Piano alto)
Balconi:
2
Camere da letto:
3
Arredamento:
Completo
Condizionamento:
Autonomo
Mostra tutto
Prezzo Prezzo
€ 225.000
Rata mutuo Rata mutuo
€ 1.061 / mese
Spese annue Spese annue
€ 50
Proponi il tuo prezzoProponi il tuo prezzo

Classe Energetica

G
G
G
G
G
G
G
G
G
EP globale non rinnovabile:
180.00 kW h/m² anno
EP invernale del fabbricato:
EP estiva del fabbricato:
Anno di costruzione:
1970
Riscaldamento:
Autonomo
Tipo impianto:
A radiatori
Tipo alimentazione:
Metano

Ti interessa visionare l'immobile?

Fissa un appuntamento  Fissa un appuntamento

Richiedi informazioni

Clicca su Leggi per aprire l'informativa
* Questi campi sono obbligatori

Calcola il tuo mutuo

Semplice e senza impegno
Anticipo

( % )
Mutuo

( % )

pochi semplici passi

inserisci i tuoi dati
Questionario completato
Grazie per aver richiesto un appuntamento senza impegno con un nostro Consulente del Credito e Assicurativo.

Hai inserito correttamente tutti i dati necessari e a breve riceverai una e-mail con un link da convalidare per inviare i tuoi dati.
Affiliato
Pavona Castel Gandolfo Srl
Via Del Mare, 86/a 00132 Castel Gandolfo (RM)

Il nostro staff


  • Luca Pelfini
    Affiliato

  • Flavia Biondo
    Affiliata

  • Beatrice Dinella
    Collaboratrice

  • Virginia Pelfini
    Responsabile

  • Simona Pozzi
    Collaboratrice
Via Del Mare, 86/a 00132 Castel Gandolfo (RM)
Zona: Castelli Romani-Castel Gandolfo-Pavona
Mostra su mappa
Orari: Dal lunedì al sabato dalle 9:00 alle 13:00 e dalle 15.00 alle 19.00
Affiliato
Pavona Castel Gandolfo Srl
Via Del Mare, 86/a 00132 Castel Gandolfo (RM)

2026 Tecnocasa Franchising S.p.A. - P. IVA 08365160152 - Via Monte Bianco 60/A 20089 Rozzano (MI). Ogni agenzia ha un proprio titolare ed è autonoma. Privacy policy | Policy utilizzo | Cookie policy